Moderne 3,5 Zimmer Penthouse-Wohnung am Riedlewald in zentraler Stadtlage
88045 Friedrichshafen, Penthousewohnung zur Miete
Kontaktdaten
-
NameFrau Ursula Heinke
-
FirmaHeinke Immobilien GmbH
-
AdresseZeppelinstr. 301
88048 Friedrichshafen / Fischbach Bodensee -
E-Mail Zentrale
-
E-Mail Direkt
-
Tel. Zentrale
Objektdaten
-
Objekt-ID799
-
ObjekttypenPenthousewohnung, Wohnung
-
Adresse88045 Friedrichshafen
-
EtageEG
-
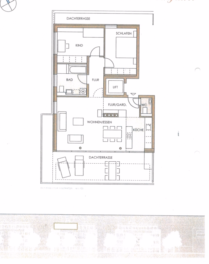
Wohnfläche ca.110 m²
-
Zimmer3,5
-
Schlafzimmer2
-
Badezimmer1
-
Separate WC1
-
Terrassen1
-
HeizungsartFußbodenheizung
-
Wesentlicher EnergieträgerGas
-
Baujahr2013
-
Zustandgepflegt
-
Stellplätze gesamt2
-
TiefgaragenstellplätzeStellplatzmiete: 70 EUR (Anzahl: 2)
-
Kaltmiete1.500,00 EUR
-
Betriebskosten brutto280,00 EUR
-
Warmmiete1.920,00 EUR (Heizkosten enthalten)
Ausstattung / Merkmale
- ✓ Kabel-/Sat-TV
- ✓ Personenaufzug
- ✓ Separates WC
- ✓ Terrasse
Energieausweis
-
EnergieausweistypBedarfsausweis
-
Gültig bis30.06.2035
-
GebäudeartWohngebäude
-
Baujahr lt. Energieausweis2013
-
PrimärenergieträgerErdgas leicht
-
Endenergiebedarf35,90 kWh/(m²·a)
-
EnergieeffizienzklasseA
Objektbeschreibung
Ausstattung
Moderne Einbauküche mit hochwertigen Geräten- perfekt für Genießer
Weitläufiger Wohn- und Essbereich mit Zugang zur großen Dachterrasse- ideal für entspannte Stunden im Freien.
Echtholzparkett mit Fußbodenheizung-
(Einzelraumsteuerung) in allen Wohnräumen
Lüftungsanlage mit Wärmerückgewinnung
Tageslichtbad mit Dusche, Badewanne, Doppelwaschtisch mit Unterschrank, WC und Anschluss für Waschmaschine und Trockner
Separates Gäste WC
Zwei Schlafzimmer mit komfortabler Raumaufteilung und Blick ins Grüne
Personenaufzug von der Tiefgarage direkt bis zur Wohnetage
Kellerraum
Zwei Tiefgaragenplätze
Hausmeisterservice
Lage
Moderne Penthouse-Wohnung am Riedlewald in zentraler Stadtlage- ruhig und dennoch zentrumsnah
Diese exklusive Penthouse-Wohnung überzeugt durch eine hochwertige Ausstattung und ein überdachtes Raumkonzept.
"Das perfekte Zuhause für alle die Exklusivität, Ruhe und Stadtnähe gleichermaßen schätzen"
Die dargestellte Position der Immobilie ist nur eine ungefähre Angabe.








